Properties Available
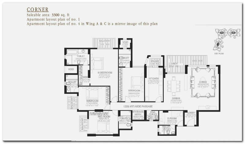
DLF The Summit in Sector-54 Gurgaon, Gurgaon by DLF Builders is a residential project. The project offers Apartment with perfect combination of contemporary architecture and features to provide comfortable living. The Apartment are of the following configurations: 4BHK
About Advertiser

ARS Realty is a pioneer in corporate real estate services and luxury residential properties in Delhi NCR. Over the last 25 years, our focus has been to provide solutions in prime and upmarket commercial and residential properties for our clients.